Loading...
Back

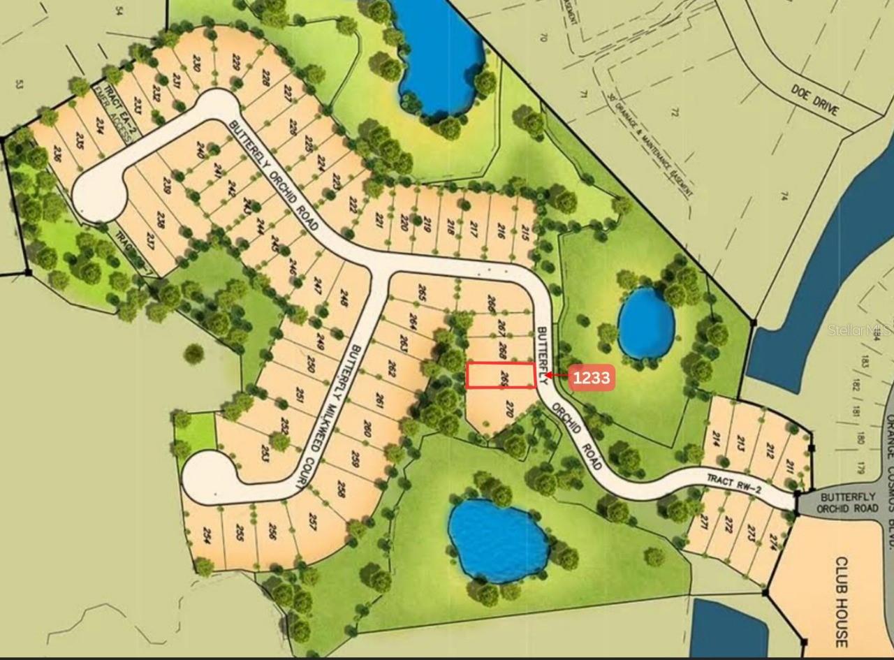
1241 BUTTERFLY ORCHID RD, DAVENPORT, FL, 33837

$ 150,000.00
Back
Back

7 months

All Photos
1/4

1241 BUTTERFLY ORCHID RD, DAVENPORT, FL, 33837

bed -- Beds
bed -- Bath
bed 7497 Sq.Feet
bed -- Beds
bed -- Bath
bed 7497 Sq.Feet

$ 150,000.00

Calc
$444/mo
Est. Payment

Property description

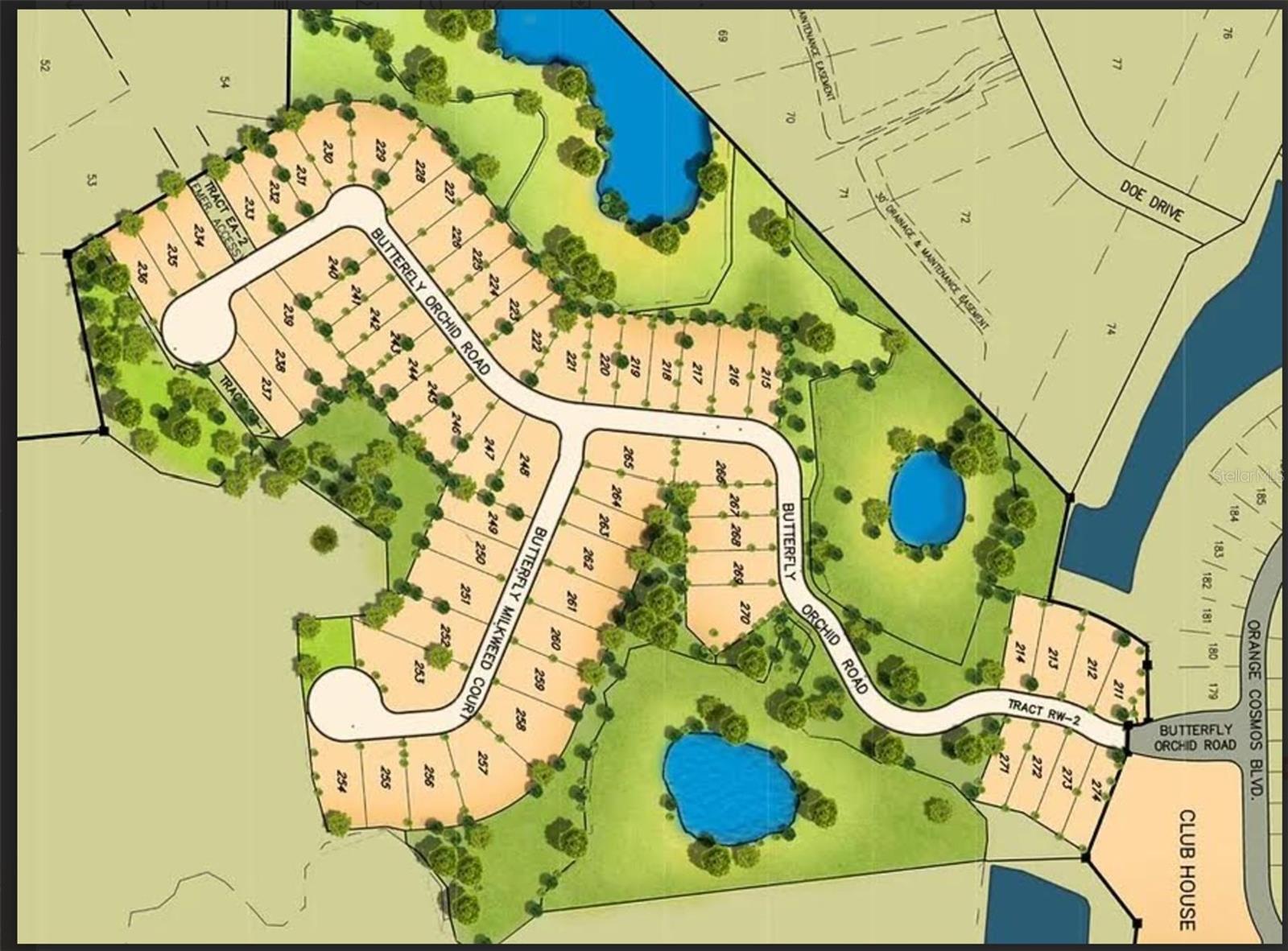
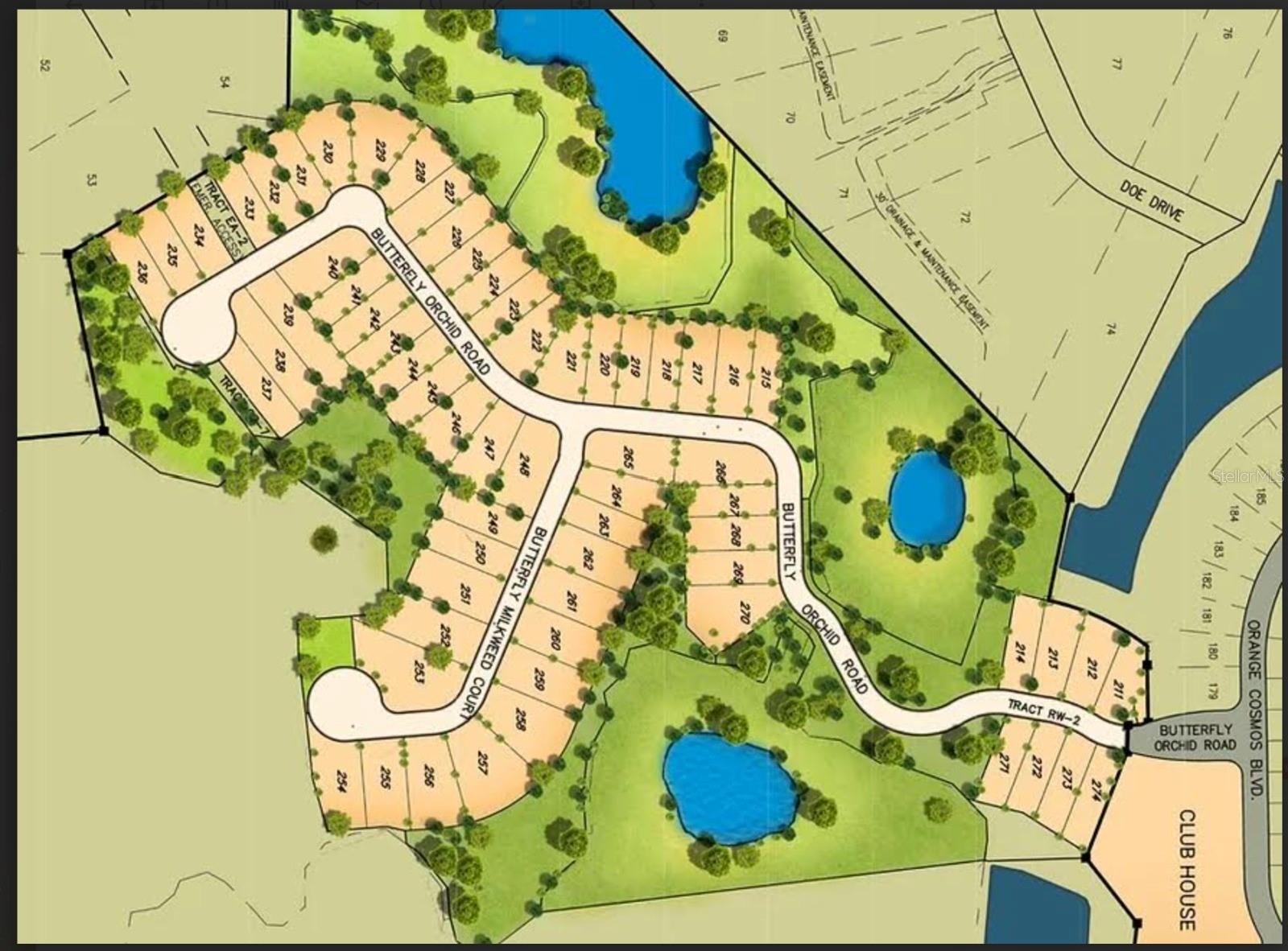
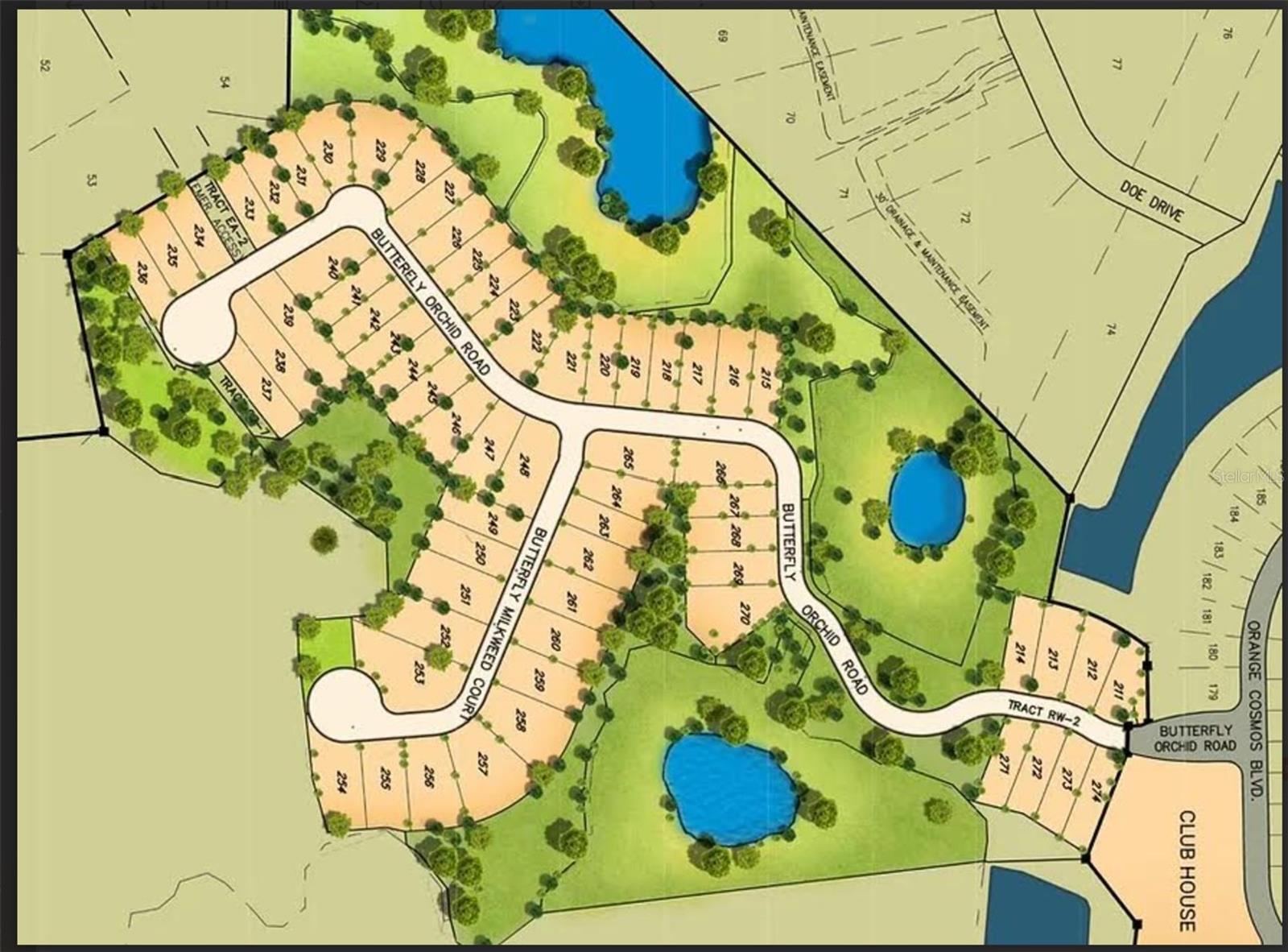
PublicRemarks:-BIG DEAL ALERT — 27 LOTS, DISNEY CORRIDOR “This is the kind of opportunity that builds empires. Believe me.” Watersong Resort is releasing an exclusive bulk package of 27 prime lots — and it’s the type of deal serious investors fight for. Perfectly positioned minutes from Disney and Orlando’s world-famous theme parks, this package gives you control of the hottest short-term rental product on the market. 22 lots (50x120 ft.) 12-Bedroom Vacation Homes 5 lots (70x120 ft.) 15-Bedroom Estates Six-Month Build Rule: Start first 10 within 6 months, then build in batches of 10 Here’s the winning formula: Park Square Homes builds them all — with the two most profitable floor plans of the past 3 years. These designs rent at top rates, stay booked, and deliver serious cash flow. Smart investors know: timing is everything. Bulk inventory like this, in a gated resort with global demand, doesn’t hit the market twice. Secure it now — before someone else does.
Directions:- From I-4, take Exit 58 to ChampionsGate Blvd/Osceola Polk Line Rd (CR-532). Drive east for approx. 4 miles and turn right on Old Lake Wilson Rd (CR-545). After 1 mile, turn left on Ronald Reagan Pkwy (CR-54). Continue 2.5 miles and turn right on Pine Tree Trail, then left into Watersong Resort (guard gate). Follow Watersong Blvd, turn right on Butterfly Orchid Rd.

Property details

Living Area

-- Square Feet

Total Area

-- Square Feet

Original List Price

$150,000.00

Private Pool

No

Fire place

No

Days On Market

4

Mortgage Calculator

$ 0
+
+
+
+
Total monthly payment = $0

Home Price

Loan Type

Down Payment

Interest Rate

Apply Veteran Benefits

inf

Apply Veteran Benefits

inf

Property Price

Date Event Price Price/Sq Ft Source
15/02/2026 Active $150000 0.0 MLS Grid

Property Tax

Year Taxes Land Additions Total Assessment
2019 $3,128 $40,900 + $80,900 = $121,800
2018 $3,128 $40,900 + $80,900 = $121,800
2017 $3,128 - + N/A = $121,800
2016 $3,128 $86,000 + $80,900 = $121,800
School Name Type Distance
Davenport School of the Arts MiddleOrJuniorSchool 0
Davenport Elem ElementarySchool 0

Location

Contact agent

Looks good!
Looks good!
Looks good!
Looks good!

By pressing Request Info, you agree that Trulia and real estate professionals may contact you via phone/text about your inquiry, which may involve the use of automated means. You are not required to consent as a condition of purchasing any property, goods or services. Message/data rates may apply. You also agree to our Terms of Use Trulia does not endorse any real estate professionals

Ask any question about property on 1241 BUTTERFLY ORCHID RD, DAVENPORT, FL, 33837

Looks good!
Looks good!
Looks good!
Looks good!

By pressing Request Info, you agree that Trulia and real estate professionals may contact you via phone/text about your inquiry, which Read more

What would you like to do?

Contact us

I want to talk about financing.